Početna
Usluge
Reference
Stanogradnja
Galerija
O Nama
Kontakt
Početna
Stanogradnja
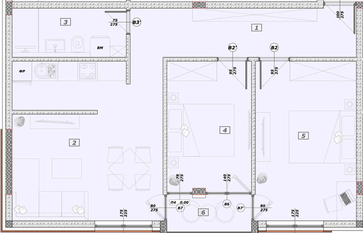
Atinska
Stan 6
Stan 6 — Dostupan
Površina
66.72 m²
Sprat
2
Sobe
3-soban
Zgrada
Atinska
Površina prostorija
1. Hodnik
10.99 m²
2. Dnevna soba sa kuhinjom i trpezarijom
22.07 m²
3. Toalet
5.22 m²
4. Spavaca soba
10.23 m²
5. Spavaca soba
15.05 m²
6. Lodja
3.17 m²
Pošalji upit za ovaj stan
Slični stanovi
Stan 1
61.68 m²
Sprat 1
dostupan
Stan 2
66.72 m²
Sprat 1
dostupan
Stan 3
64.08 m²
Sprat 1
dostupan
Stan 5
61.68 m²
Sprat 2
dostupan
Stan 5
Stan 7
Stan 6 – Atinska | GRADEX DOO | GRADEX DOO