Početna
Usluge
Reference
Stanogradnja
Galerija
O Nama
Kontakt
Početna
Stanogradnja
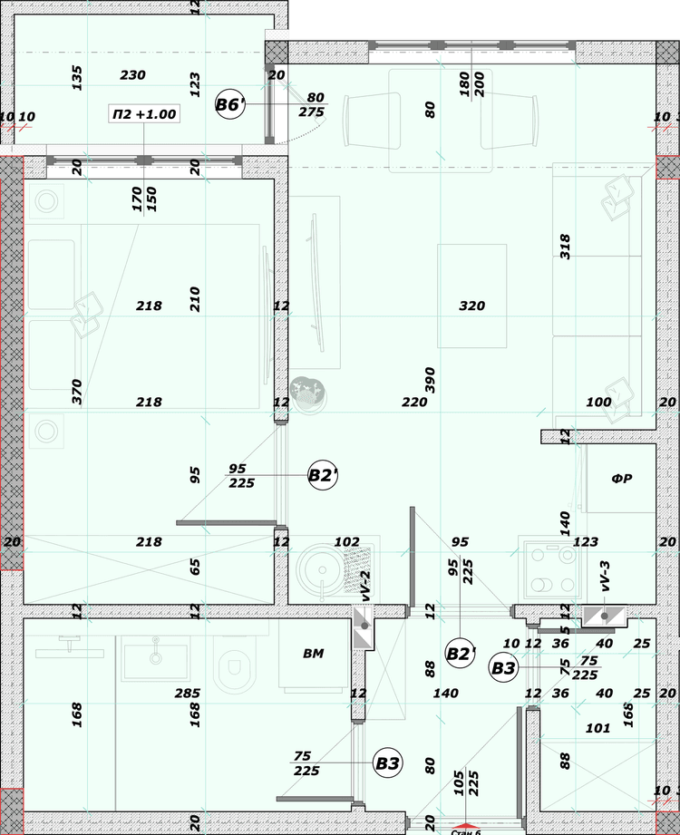
Račanska
Stan 11
Stan 11 — Dostupan
Površina
34.93 m²
Sprat
1
Sobe
2-soban
Zgrada
Račanska
Površina prostorija
Hodnik
2.87 m²
Dnevna soba, kuhinja, trpezarija
14.92 m²
Spavaća soba
8.18 m²
Kupatilo
4.79 m²
Ostava
1.70 m²
Lođa
2.47 m²
Pošalji upit za ovaj stan
Slični stanovi
Stan 1
44.93 m²
Sprat Prizemlje
dostupan
Stan 3
42.92 m²
Sprat Prizemlje
dostupan
Stan 8
43.65 m²
Sprat 1
prodat
Stan 14
43.65 m²
Sprat 2
prodat
Stan 10
Stan 12
Stan 11 – Račanska | GRADEX DOO | GRADEX DOO