Početna
Usluge
Reference
Stanogradnja
Galerija
O Nama
Kontakt
Početna
Stanogradnja
Kanal
Stan 30
Stan 30 — Dostupan
Površina
54.24 m²
Sprat
5
Sobe
3-soban
Zgrada
Kanal
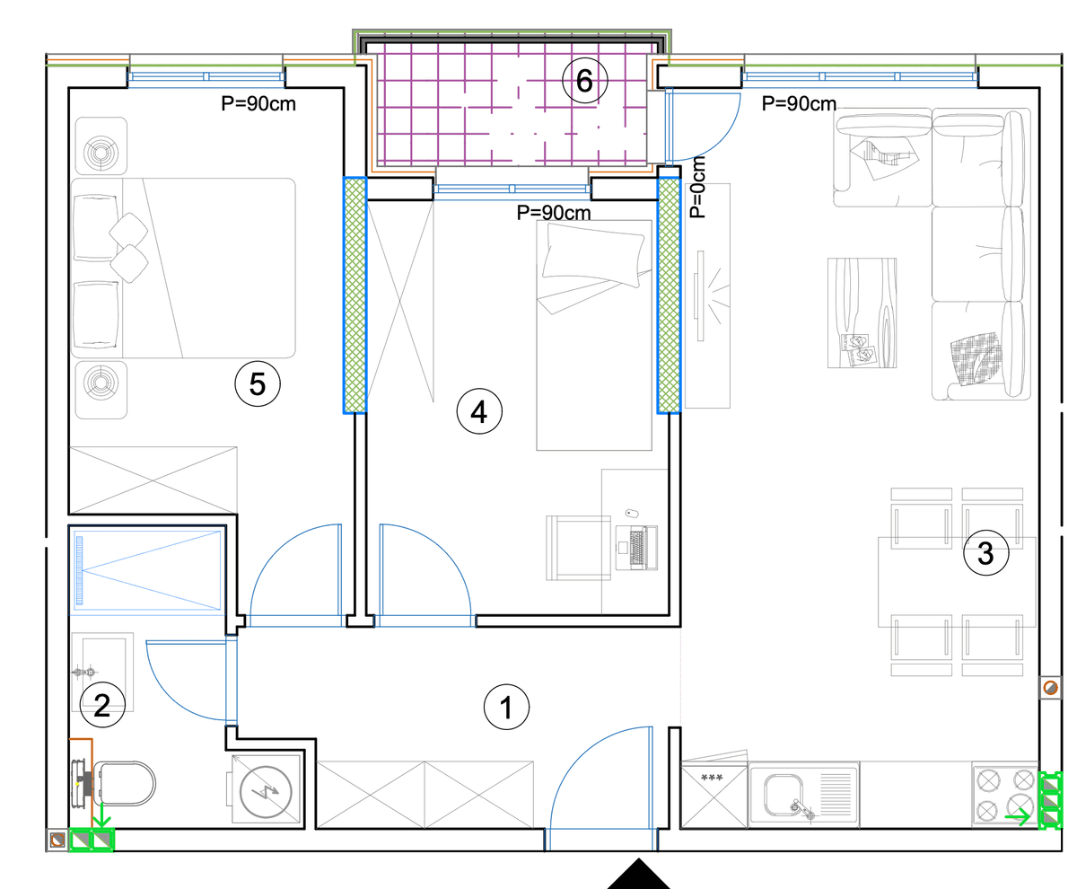
Površina prostorija
1. Hodnik
6.46 m²
2. Kupatilo
4.25 m²
3. Dnevni boravak sa kuhinjom i trpezarijom
21.12 m²
4. Spavaca soba
9.80 m²
5. Spavaca soba
10.34 m²
6. Lodja
2.27 m²
Klikni za otvaranje PDF tlocrta
Pošalji upit za ovaj stan
Slični stanovi
Stan 3
52.63 m²
Sprat 1
dostupan
Stan 9
68.64 m²
Sprat 2
dostupan
Stan 10
54.24 m²
Sprat 2
dostupan
Stan 16
68.64 m²
Sprat 3
dostupan
Stan 29
Stan 31
Stan 30 – Kanal | GRADEX DOO | GRADEX DOO