Početna
Usluge
Reference
Stanogradnja
Galerija
O Nama
Kontakt
Početna
Stanogradnja
Kanal
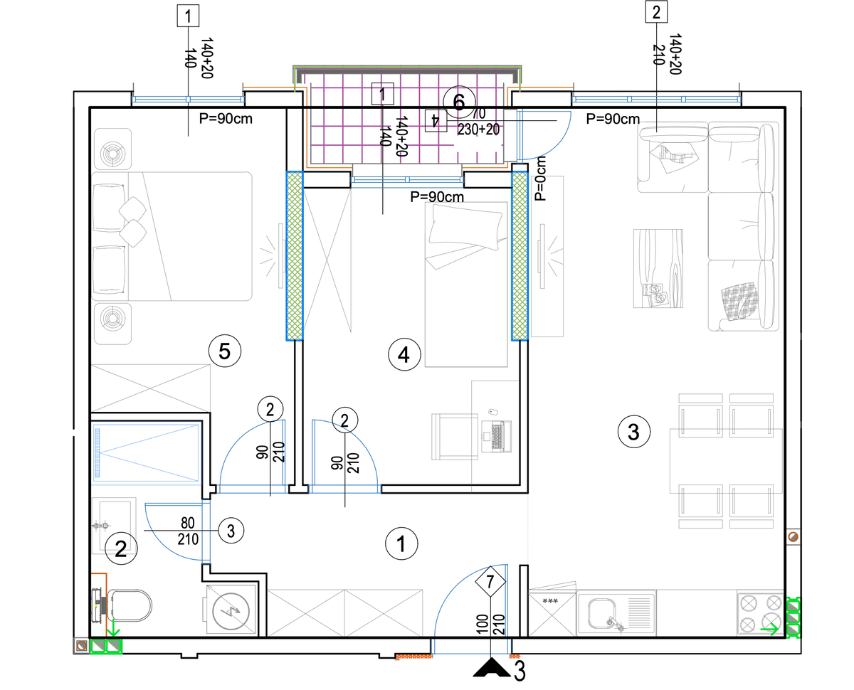
Stan 3
Stan 3 — Dostupan
Površina
52.63 m²
Sprat
1
Sobe
3-soban
Zgrada
Kanal
Površina prostorija
1. Hodnik
6.46 m²
2. Kupatilo
4.27 m²
3. Dnevni boravak sa kuhinjom i trpezarijom
21.12 m²
4. Spavaca soba
9.80 m²
5. Spavaca soba
10.34 m²
6. Lodja
2.27 m²
Klikni za otvaranje PDF tlocrta
Pošalji upit za ovaj stan
Slični stanovi
Stan 9
68.64 m²
Sprat 2
dostupan
Stan 10
54.24 m²
Sprat 2
dostupan
Stan 16
68.64 m²
Sprat 3
dostupan
Stan 22
68.64 m²
Sprat 4
dostupan
Stan 2
Stan 4
Stan 3 – Kanal | GRADEX DOO | GRADEX DOO