Početna
Usluge
Reference
Stanogradnja
Galerija
O Nama
Kontakt
Početna
Stanogradnja
Kanal
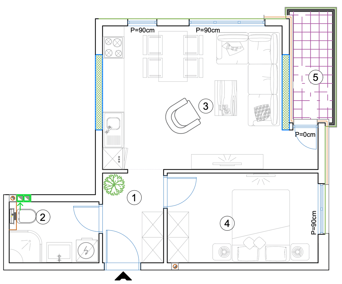
Stan 32
Stan 32 — Dostupan
Površina
41.83 m²
Sprat
5
Sobe
2-soban
Zgrada
Kanal
Površina prostorija
1. Hodnik
4.35 m²
2. Kupatilo
4.25 m²
3. Dnevni boravak sa kuhinjom i trpezarijom
21.10 m²
4. Spavaca soba
10.50 m²
5. Lodja
2.93 m²
Klikni za otvaranje PDF tlocrta
Pošalji upit za ovaj stan
Slični stanovi
Stan 4
40.89 m²
Sprat 1
dostupan
Stan 5
41.83 m²
Sprat 1
dostupan
Stan 6
38.47
Sprat 1
dostupan
Stan 7
35.05 m²
Sprat 1
dostupan
Stan 31
Stan 33
Stan 32 – Kanal | GRADEX DOO | GRADEX DOO